Euston Street, Belfast

Price £220,000
0 bedrooms
1 bathrooms
1 receptions
Leasehold

Additional information

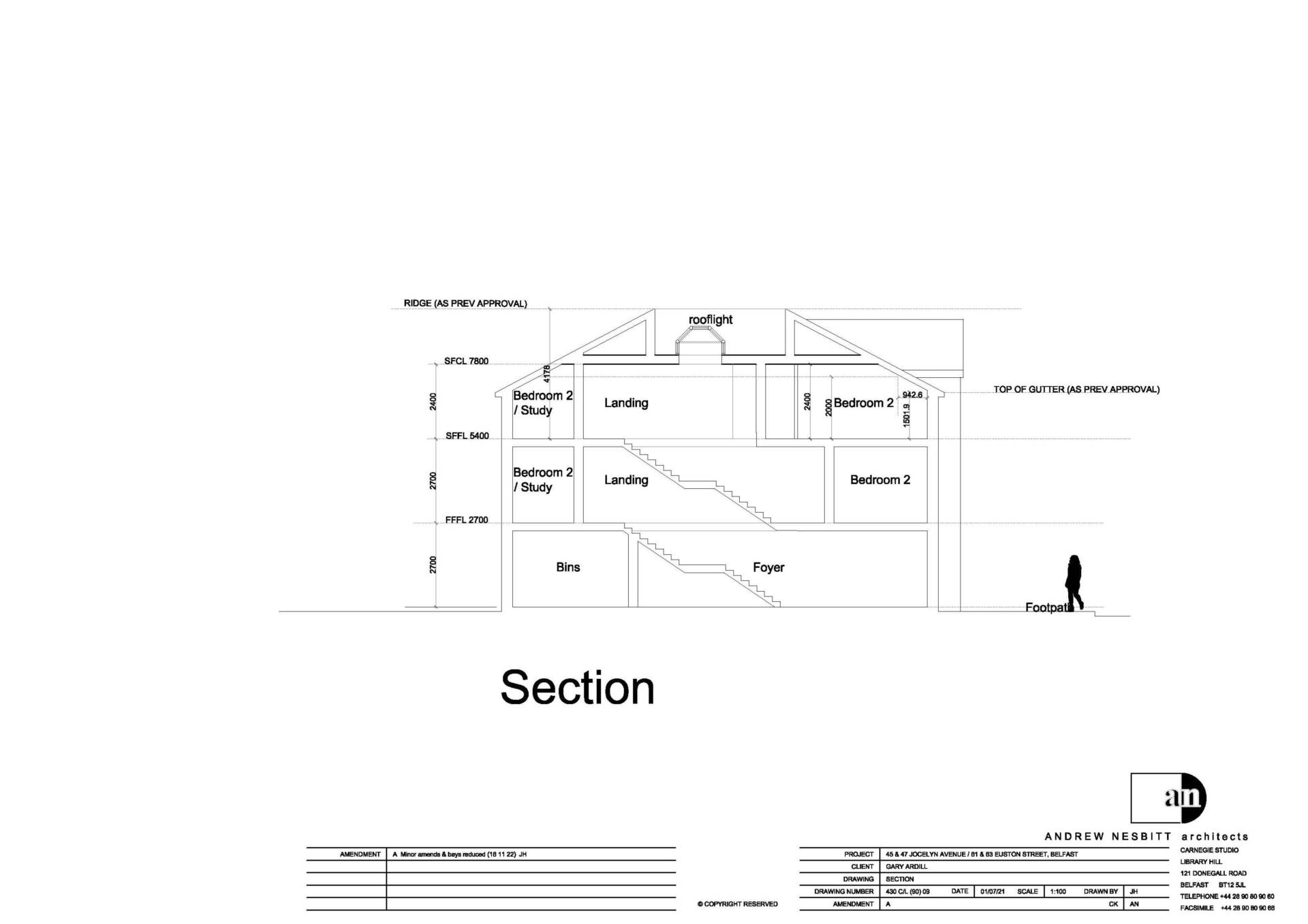
  • Excellent Development Site for 6x apartments with Full Planning Permission
  • 2x One bedroom ground floor apartments
  • 2x Two bedroom first floor apartments
  • 2x Two bedroom second floor apartments
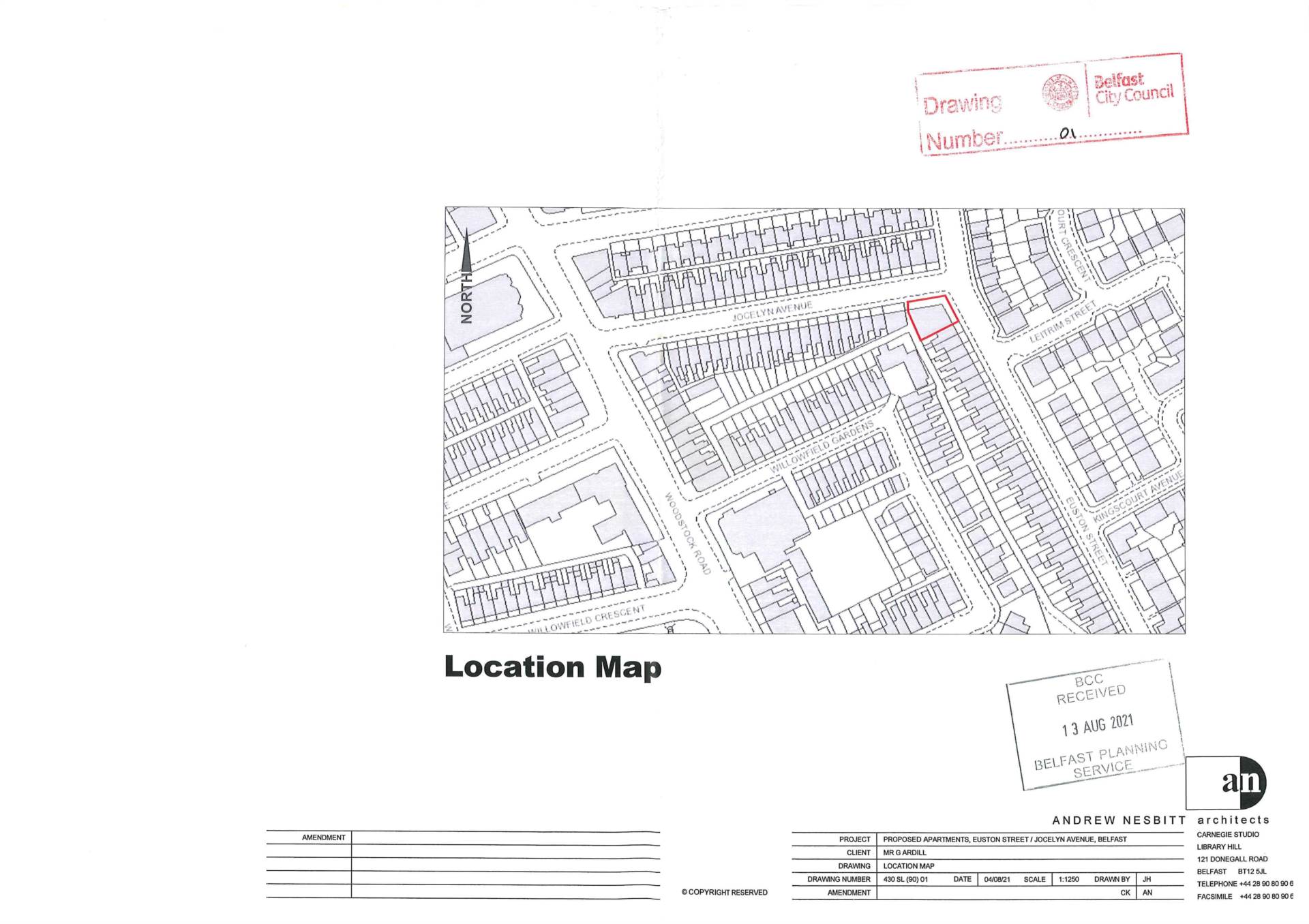
  • Planning reference: LA04/2021/1973/F
  • Fantastic location in East Belfast
  • Currently occupied by a tenant - contact Pooler Estate Agents for information

Description

This site has approved planning permission for a development of 4x two bedroom apartments and 2x one bedroom apartments.

Application number LA04/2021/1973/F

The location is in a popular area within East Belfast, with great local amenities and fantastic access to the city centre.

For further information or register your interest, please contact Michael Finlay on 02890 453319 or email michael@poolerestateagents.com

Please note we have not tested any apparatus, fixtures, fittings, or services. Interested parties must undertake their own investigation into the working order of these items. All measurements are approximate and photographs provided for guidance only.

Property Enquiry

Office

36 Cregagh Road Belfast BT6 9EQ

Opening hours
Mon-Fri 9am - 5pm
028 9045 3319

Default alt text

Selling or renting, choose the right avenue